Your search results
Project number:2023/176037

About Sea La Vie

Starting from
Ask for price

Available Units
1-4 Bedrooms

Down Payment
10%

Handover
Q2 2026

In Q1 2023, 9Yards Developments unveiled its first-ever residential project: Sea La Vie, set in the vibrant Yas Bay on Yas Island. Currently under construction, the development is expected to be completed by Q2 2026.

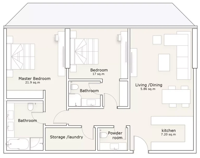
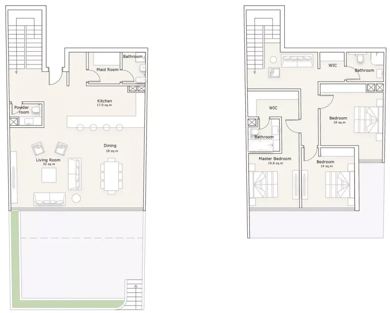
Sea La Vie will feature a luxurious four-tower mixed-use complex, offering a curated selection of modern residences—including 1 to 4-bedroom apartments, one-bedroom lofts with double-height ceilings, spacious 4-bedroom penthouses,

and stylish 2 and 4-bedroom duplexes. The project will comprise 605 units, with sizes ranging from 732 sq. ft to 6,835 sq. ft. Each residence will include at least one balcony with stunning waterfront views, while select floor plans will also feature a maid’s room for added convenience.

Property Information

Location Icon Location Yas Island, Abu Dhabi, UAE
Developer Icon Developer 9Yards Developments
Status Icon Status of Project In progress
Type Icon Type of Project Apartment , penthouse , duplex
Units Icon Units 1-4BR
Area Icon Area from 732 to 6,835 sq. ft
Payment Icon Payment Plan: 30/70
Location Icon Location: Yas Island, Abu Dhabi, UAE Developer Icon Developer: 9Yards Developments
Status Icon Status of Project: In progress Type Icon Type of Project: Apartment , penthouse , duplex
Units Icon Units: 1-4BR Area Icon Area from: 732 to 6,835 sq. ft
Payment Icon Payment Plan: 30/70

Our Expert Will Help You

Feel Free to Contact Us at Any Time, We Are Online 24/7

Floor Map

30/ 70 Payment Plan

10%

Down Payment

20%

On Construction
 

70%

On Handover 

Mortgage Calculator

11,000,000 AED 2,750,000 AED 20 Years 4%


Monthly Payment

49,993.38 AED

Total Loan Amount: 8,250,000 AED

Interest Rate: 4%

Loan Period: 20 years

Location

Yas Island is connected to Saadiyat Island via the transit network. Sheikh Khalifa Bin Zayed Street passes through the whole island and takes you to the mainland.

The Al Maha St/Water World bus stop is a 10-minute walk from Yas Golf Collection. Route 190 is accessible on the island.

Transport accessibility from the complex is:

  • Ferrari World Abu Dhabi and Yas Waterworld – 10 minutes;
  • Abu Dhabi International Airport – 15 minutes;
  • Downtown Abu Dhabi – 15 minutes;
  • Dubai – 50 minutes.

Book Your Free Consultation with Our Experts

Our Expert Will Help You

Feel Free to Contact Us at Any Time, We Are Online 24/7

Compare